
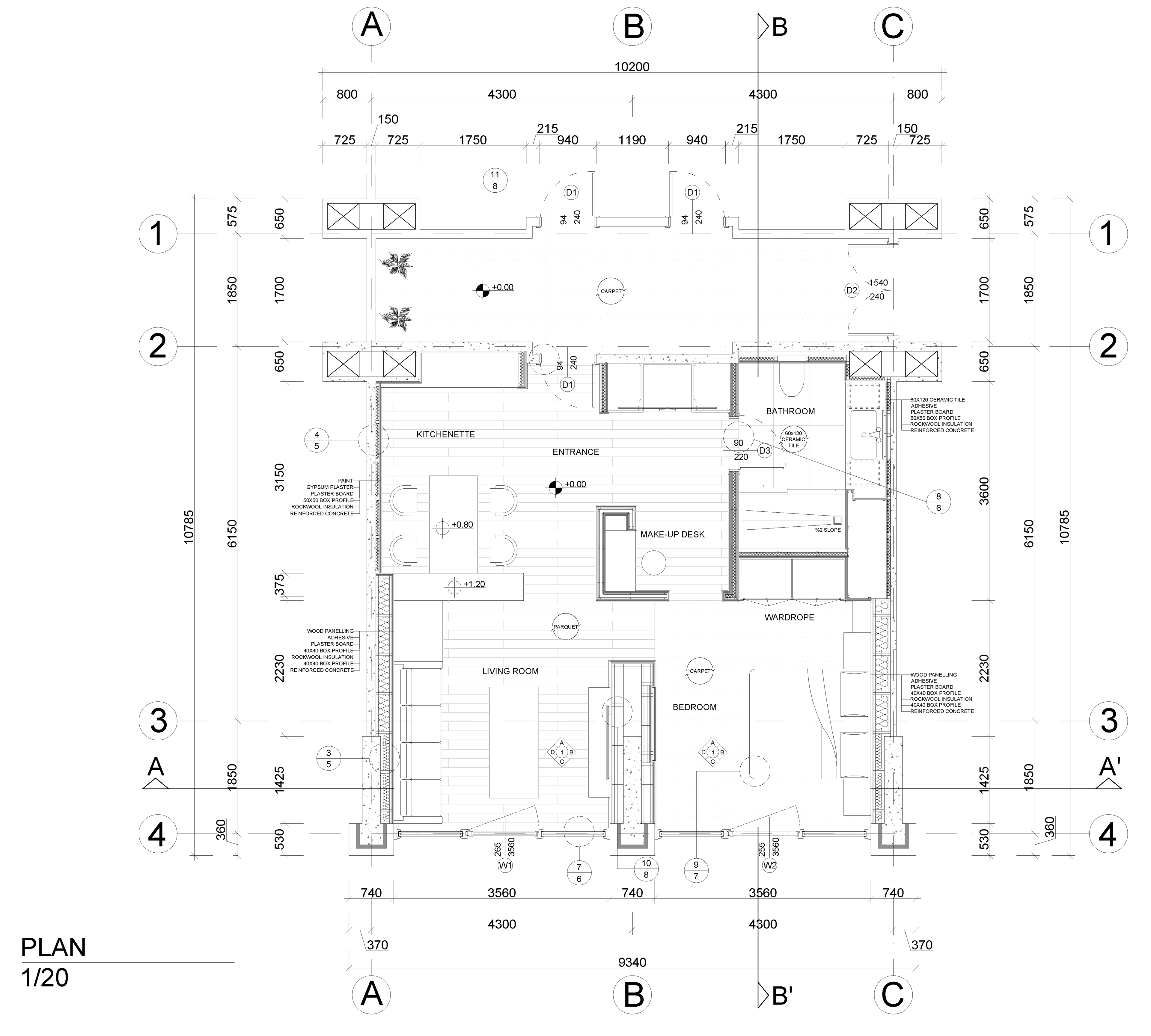
Floor Plan

Elevation

Section 1

Section 2

Detail 1

Reflected Ceiling Plan

Detail 2

Detail 3

It is the room design of Sheraton Ankara Hotel located in Ankara/Çankaya. In the project, the room was redesigned and detail drawings were prepared. Designed in 2023-2024 Fall semester.