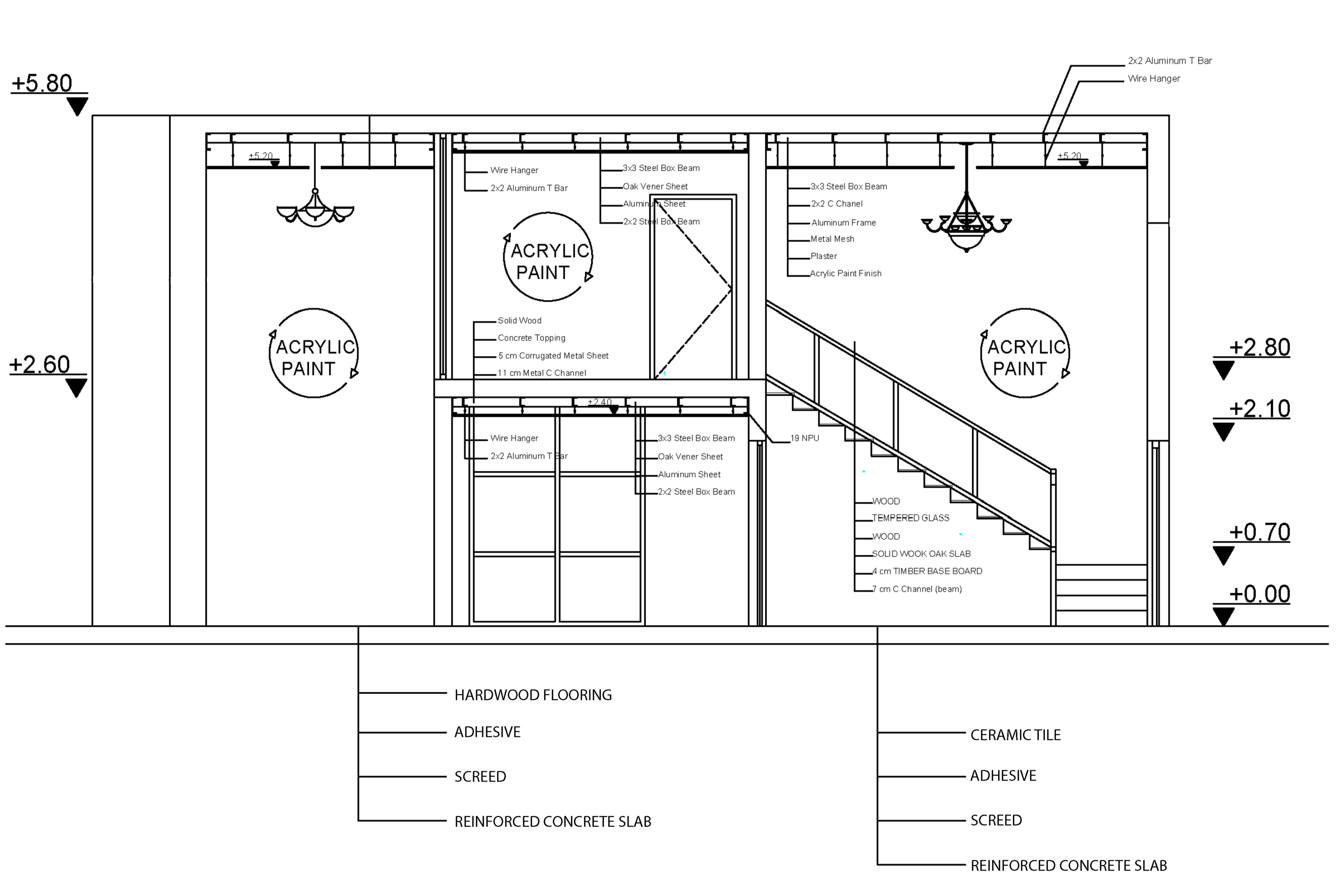
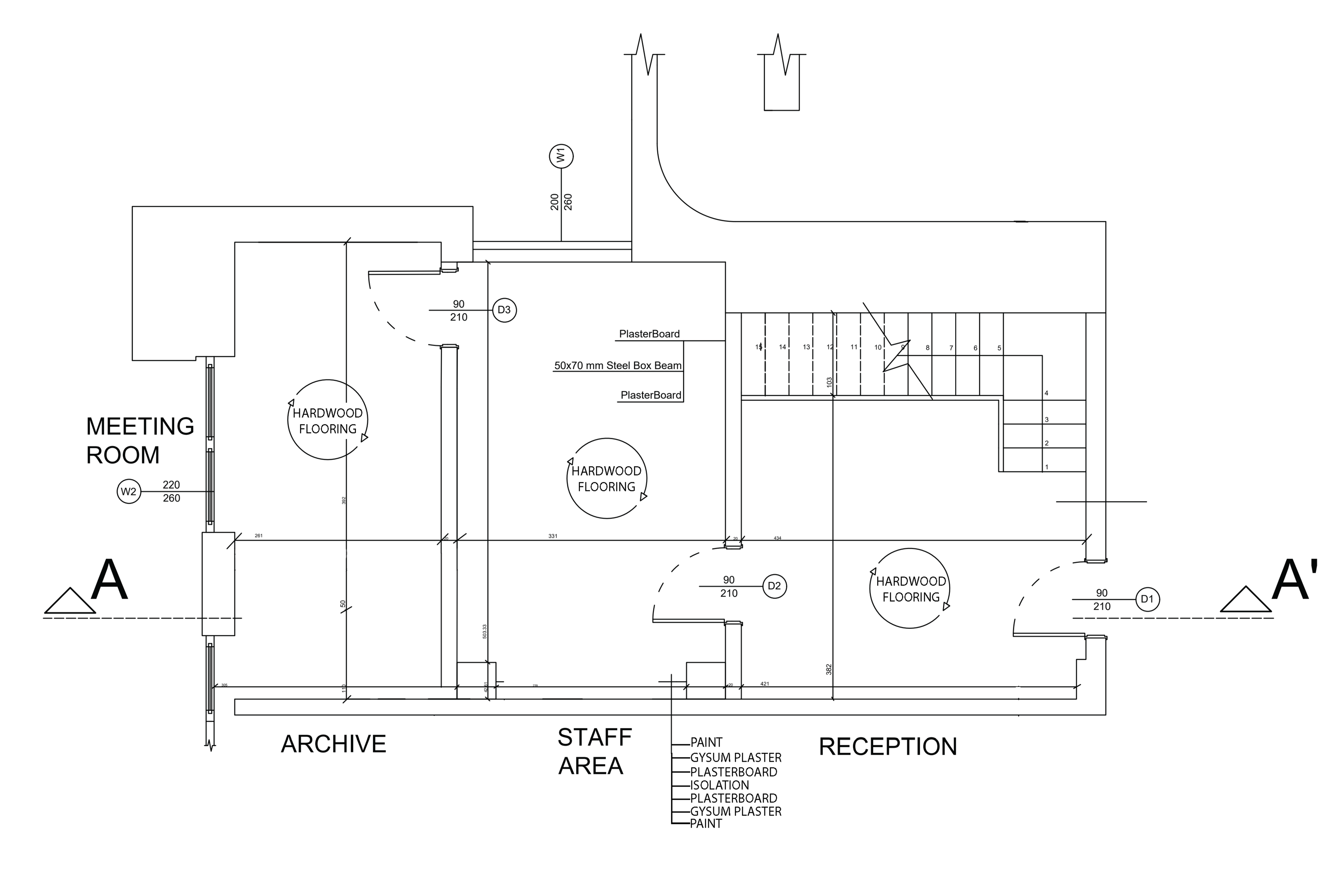
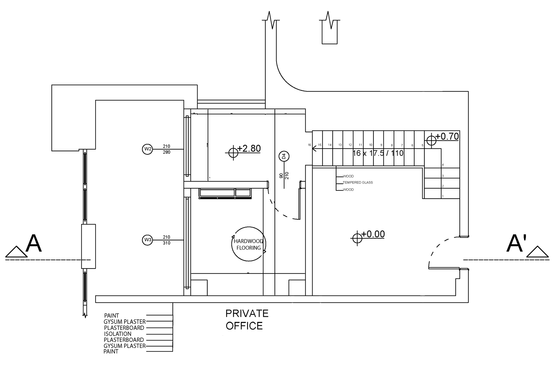
A space which survey work was done by the student, redesigned as a law office and construction drawings were prepared. Designed in 2022-2023 Spring semester.